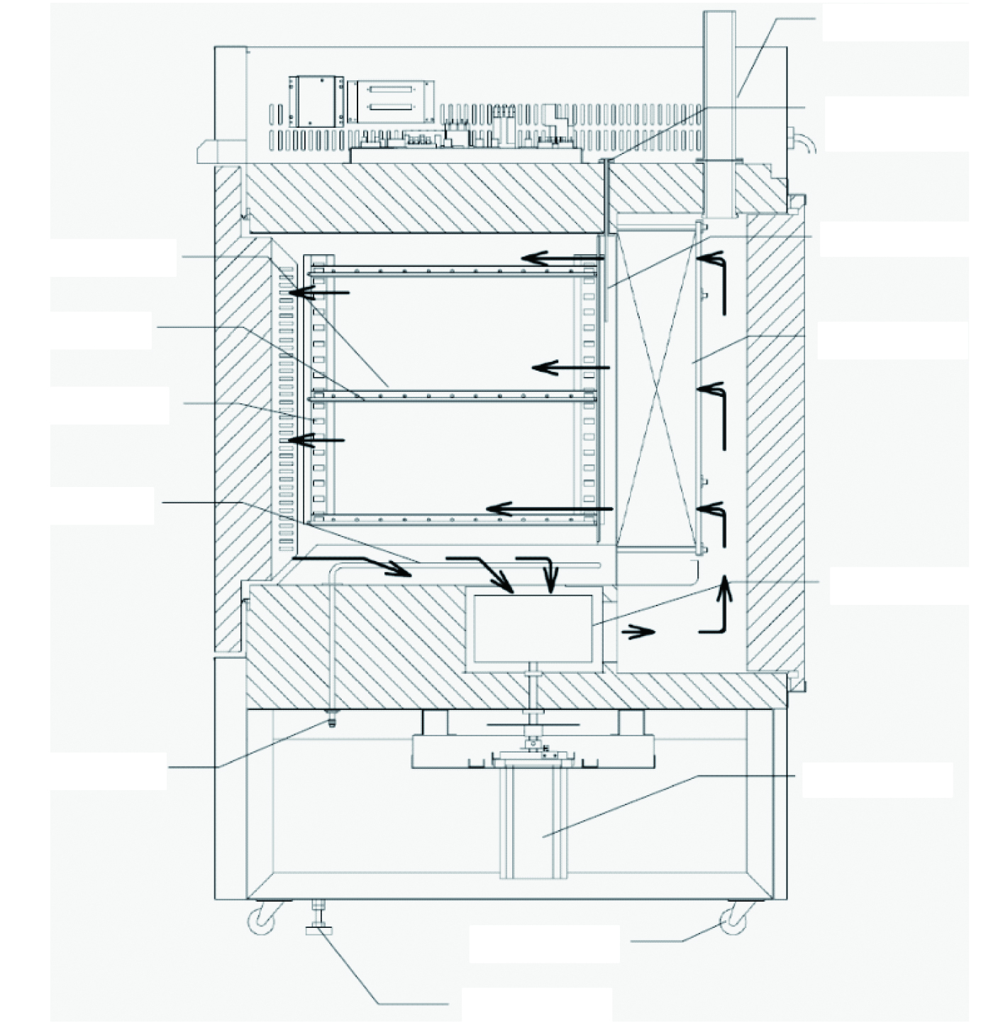
Clean oven suitable for temperature test in dust-free environment.
Features
V-type controller improves the display visibility and operability of the operation panel, with Power consumption / CO2 discharge monitor functioning as standard.
Adoption of anti-fouling caster (preventing wheel contamination during transportation)
Improvement of visibility of HEPA filter replacement timing by three color indication.
Improvement of safety by phase-reversal relay, detecting of incorrect wiring of power supply when installing.
Cable diameter changed from 30mm I.D to 33mm I.D when compare withconventional equipments.
More options when compare with conventional equipment.
Stainless mesh basket shelf(ODT14)
Additional sensor (sheath sensor)(ODT48)
Silicon plug (with one hole)(ODT52)
External communication adapter set(OIN90)
Stainless wire shelf(DE/DT62)
Stainless punching metal shelf(DE-DT62PTN)
Exhaust port for clean room(ODT18)
Automatic damper(ODT24)
N2 gas injection unit 50L/min(ODT28)
Emergency stop switch(ODT34)
Digital recorder, 6 points, sensors are not included(ODT42)
High performance HEPA filter, class 100 in all heating conditions max temp: 200°C(ODT70)
Power cord change, 10m(ODT44)
External communication terminal (RS485)(ODT54)
Temperature output terminal (4-20mA)(ODT56)
External alarm terminal(ODT58)
Time-up output terminal(ODT62)
Operation signal output terminal(ODT64)
Event output terminal(ODT66)
Clean oven(DT430C)
Clean oven(DT430UC)
Clean oven(DT630C)
Clean oven(DT630UC)
Clean Oven(DE411)
Clean Oven(DT411)
Clean Oven(DT611)
Clean Oven(DE630UC)
Clean Oven(DE630C)
Clean Oven(DE430UC)
Clean Oven(DE430C)